26 sij Kamena kuća drvene konstrukcije
Arhitekti tvrtke Corpo Atelier rekonstruirali su staru kamenu kuću u Portugalu unutar koje su smjestili drvenu konstrukciju pomoću koje je stvoren dodatni stambeni prostor. Sve što je ostalo od originalne kuće su četiri vanjska kamena zida, a dodana je drvena krovna konstrukcija i komplatan interijer definiran drvenim gredama i stupovima.
Kamena kuća dobila je još jedan kat, zidovi su povišeni blokovima drugačijeg formata od originalnih kako bi se definirala razlika u vremenu gradnje.
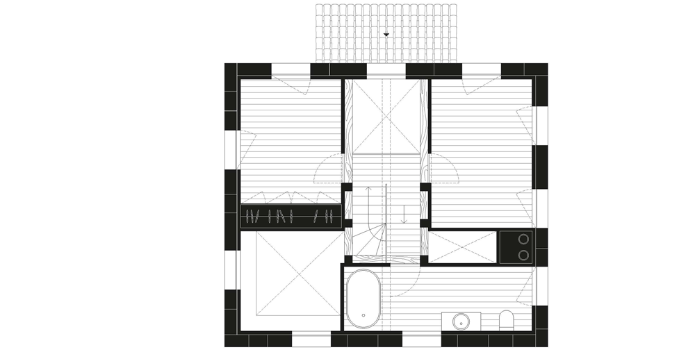
Drvena konstrukcija definira unutarnji prostor horizontalno i vertikalno. U središtu kuće svoje mjesto su zauzele drvene stepenice ispod kojih se nalazi malo spremište i wc. Kat se sastoji od dvije spavaće sobe i kupaonice.
Izvor: Dezeen.com


















