20 svi Visoko u potkrovlju
Studio: Formafatal
Autori: Katarina Varsová, Petra Dagan
Lokacija projekta: Trg Arbes, Prag (Češka)
Godina završetka: 2024
Površina stana: 92 m²
Fotografije: BoysPlayNice
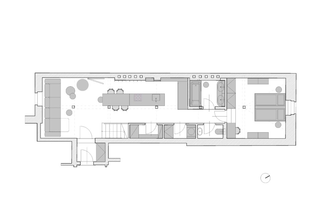
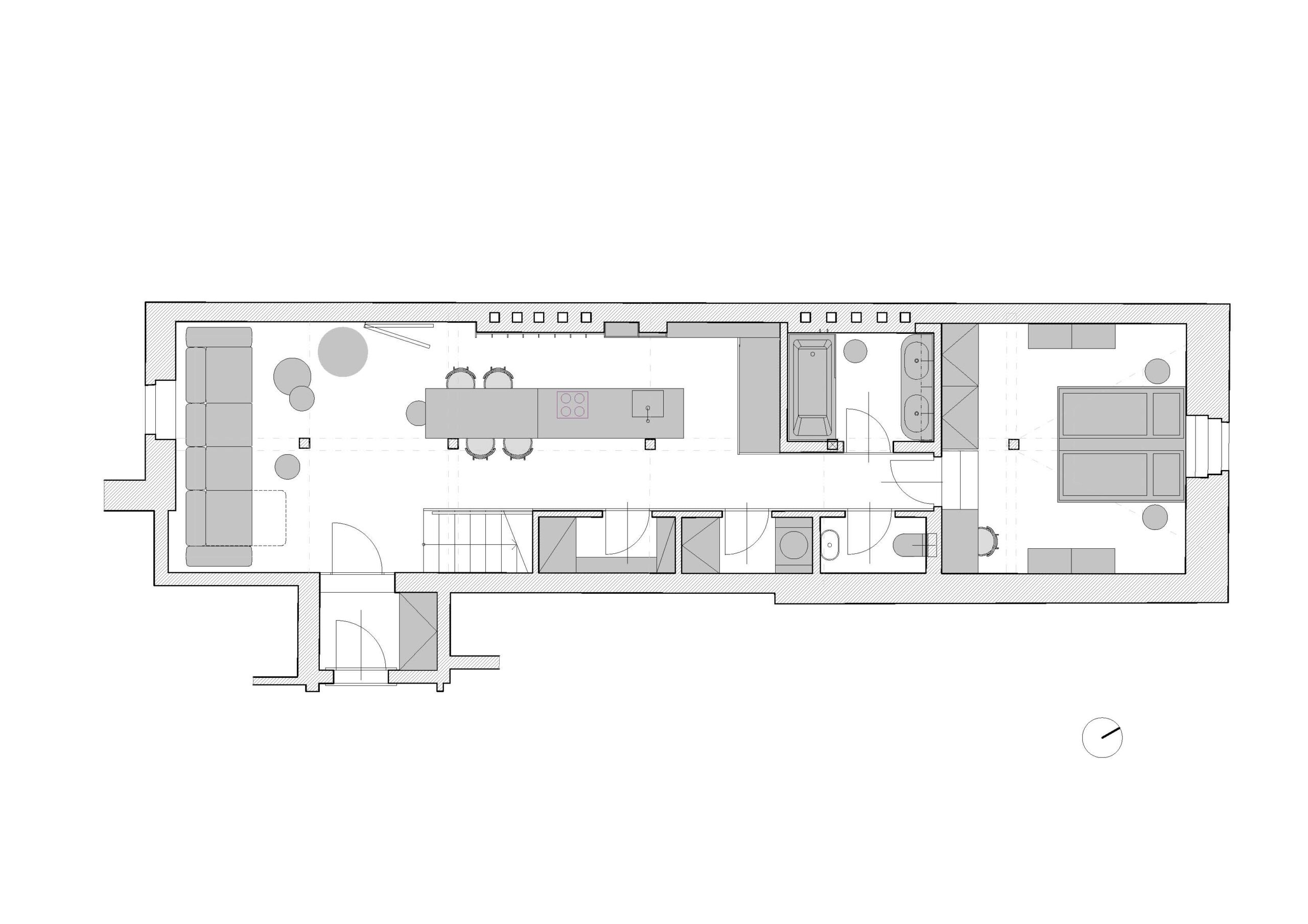
Adaptacija tavanskog prostora u zgradi na Trgu Arbes fokusirana na stvaranje dvoetažnog tavanskog apartmana namijenjenog ekskluzivnom najmu. Prije početka projektiranja, originalnu dokumentaciju za građevinsku dozvolu cijelog kata pripremio je arhitekt Pavel Hnilička. Nakon toga, klijent se obratio za izradu unutarnjeg dizajna i eventualnu prilagodbu rasporeda.
Cijeli kat bio je podijeljen u četiri stambene jedinice, od kojih je jedna bila dio našeg dizajna. Raspored apartmana promijenjen je minimalno, uzimajući u obzir tehničke mogućnosti i poziciju priključnih točaka. Klijentova želja bila je stvoriti bezvremenski, ali jedinstven prostor koji bi privukao potencijalne stanare. Ključni aspekti bili su praktičnost i održivost korištenih površina i materijala.
Klijent nam je dao potpunu slobodu u konceptualnom dizajnu cijelog tavana. Prostor, koji je na početku izgledao prilično mračno zbog manjih krovnih prozora, pretvoren je u svijetli i prozračan interijer s atraktivnim dodacima boja i materijala. Glavni element postao je mat površina u krem bijeloj boji, obogaćena različitim teksturama i suptilnim nijansama sive i plave, te upotrebom izbjeljenog drva. Ova osnova oživljena je akcentima u tirkiznoj i terracotta boji, primijenjenim na samostalne elemente.
Unutar prostora smještena je zasebna masa – tamni blok, niski kvadar postavljen u visoki, otvoreni prostor s visokom krovnom konstrukcijom. Ovj blok, koja sadrži visoki kuhinjski ormar, oblaganje hodnika i ormar u spavaćoj sobi, izrađen je od ujedinjenih materijala i postavljen ispod stropa galerije, završen u dekoru tamnog oraha. Rezultat je kontrast između umetnute mase, koja se drži uz jedan od vanjskih zidova.
Gornji kat ostaje u mekim i kremastim nijansama sive. Osim drvene konstrukcije kamina, upečatljiv element je čelične stepenice s neobično dizajniranom ogradom od matiranih čeličnih profila, sa umetnutim perforiranim limom u odgovarajućoj shemi boja. Na dnu stepenica, gdje se nalazi prostor za pohranu, perforirani lim podupire ogledalo od nehrđajućeg čelika. Ova kombinacija stvara efekt ogledala prostora, zadržavajući praktičan pristup skladištenju. Na sličan način, dio konstrukcije hodnika djelomično je perforiran i djelomično opremljen ogledalom.
Veliki izazov za nas bila je složenost starog tavanskog prostora. Nastojali smo s njim postupiti osjetljivo uključujući unutarnje elemente koje smo dizajnirali i izradili po mjeri, kao što je uobičajeno za nas. Rezultat je harmoničan kontrast između modernih umetnutih elemenata i stare priče koju pričaju grede originalne krovne konstrukcije. Taj dijalog između povijesnog i modernog daje prostoru jedinstveni karakter i stvara privlačan ambijent za njegove stanare.






















