05 lis Tri u jedan by Create + Think
Stan Tri u jedan nalazi se u blizini rijeke Keelung na Tajvanu. Za uređenje stana zaslužni su arhitekti studia Create + Think.
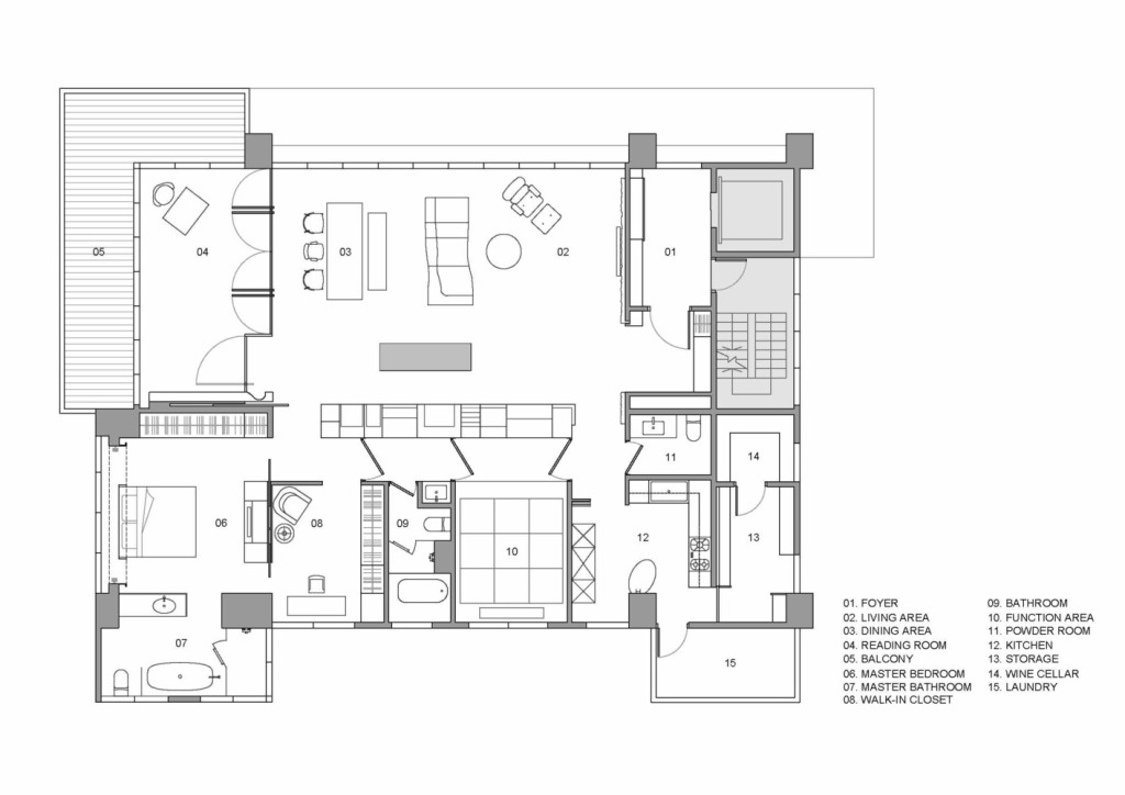
Tlocrtno stan je kvadratnog oblika i funkcionalno je podijeljen na tri cjeline: boravak, spavaći dio i kulinarstvo. Sastoji se od ulaza, dnevnog boravka, blagovaone, sobe za čitanje, balkona, glavne spavaće sobe za kupaonicom, walk in ormara, kupaonice, wc-a, kuhinje, smočnice, vešeraja i vinske sobe.
Izvor: Archdaily.com
Save























