stan-skladiste-1

Skladišni prostor pretvoren u prostrani stan

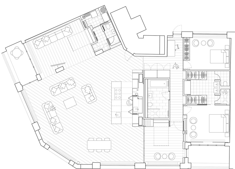
Mnogo je primjera u kojima su prostori čija primarna namjena nije bila stambena, preuređeni da upravo to postanu. Ovaj Londonski primjer djelo je studia Inside Out Architecture. Skladišni prostor pretvoren je u prostrani stan otvorenog tipa, gdje središnji prostor ima više namjena. Za uređenje su korištene razne kombinacije materijala, a možete zamjetiti gole betonske zidove i stropove koji daju poseban potpis uređenju.

stan-skladiste-2

stan-skladiste-3

stan-skladiste-4

stan-skladiste-5

stan-skladiste-6

stan-skladiste-7

stan-skladiste-8

stan-skladiste-9

Izvor: Freshome.com