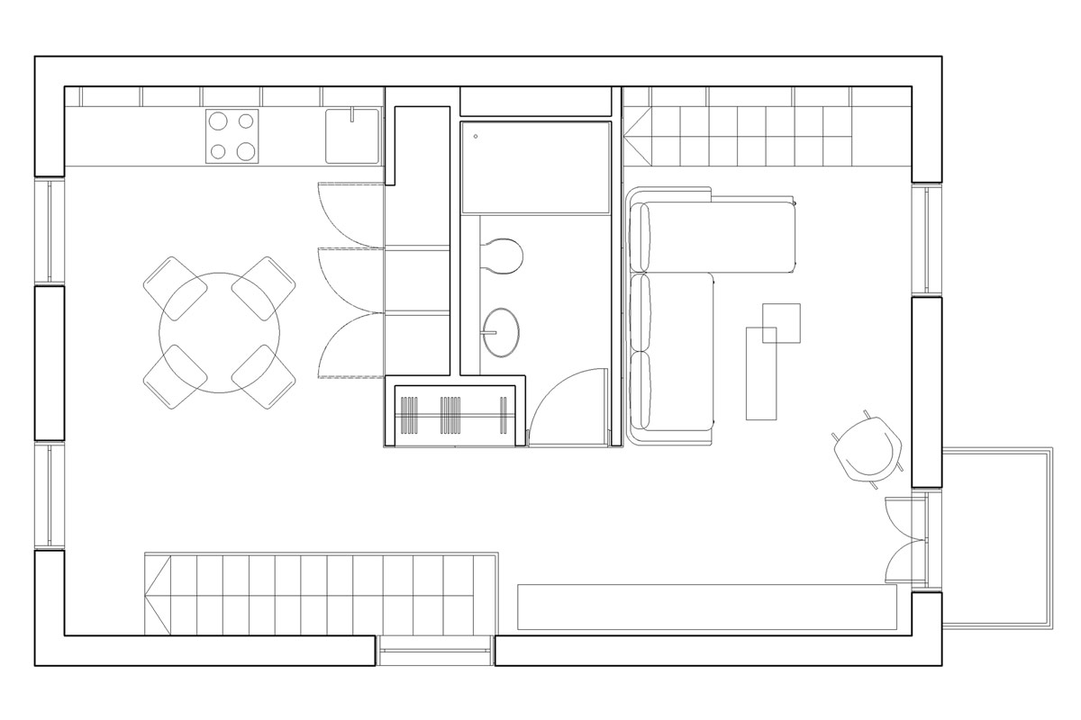
Moderno uređen mladenački stan od 56 m²

Ovaj primjer moderno uređenog mladenačkog stana nalazi se u Londonu i bez problema se može uklopiti u bilo koji moderni grad. Svojim trendi izgledom najviše će se svidjeti mlađoj populaciji kojoj su ovakvi stanovi namjenjeni. Smješten u potkrovlju kuće sa svojih 56 m² nudi sve što je mladim osobama potrebno. Bijeli zidovi i drveni podovi pružaju osjećaj prostranosti. U stan se dolazi stubištem smještenim uz rubni zid koje vodi u blagavaonu sa okruglim drvenim stolom i zaigranim šarenim stolicama.

moderno-ureden-mladenacki-stan-od-56-m2-2

moderno-uređen-mladenacki-stan-od-56-m2-10

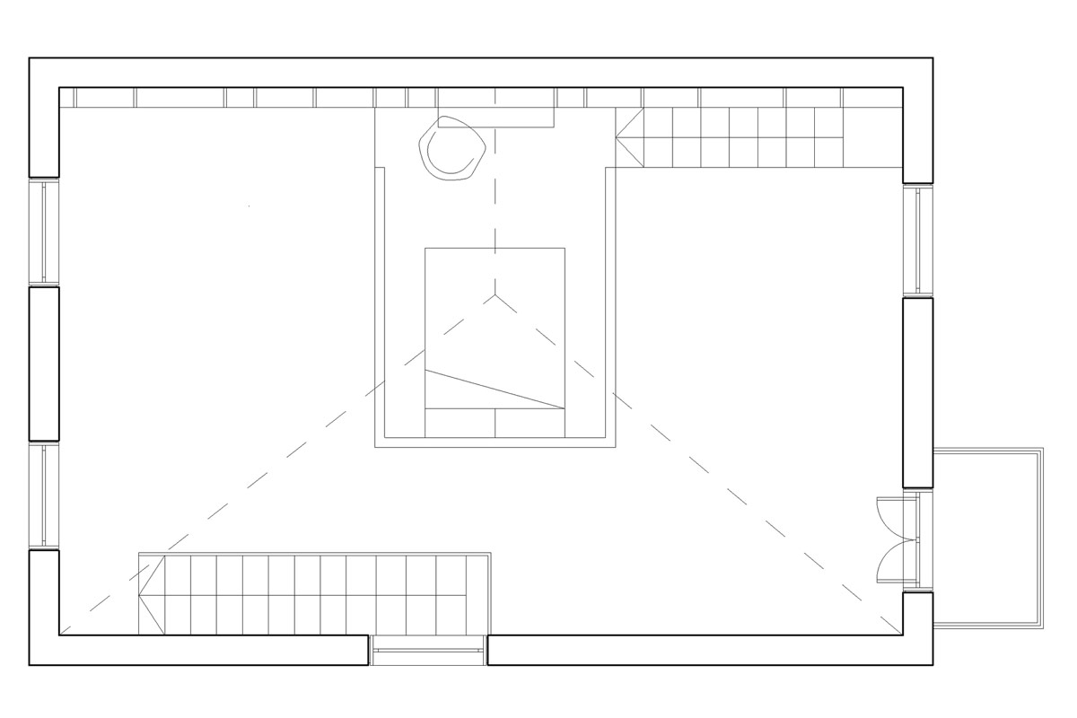
U nastavku blagavaone nalazi se malena kuhinja koja je opremljena sa svom opremom koja je potrebna za spremanje obroka. Središnji dio stana je njegov najbolji dio jer jedan blok nudi nekoliko odličnih rješenja za uređenje malih prostora poput ovoga. U srcu tog dijela smještena je kupaonica koja razdjeljuje kuhinju i blagavaonu od dnevnog boravka koji se nalazi sa druge strane bloka. Cijeli krajnji zid od poda do stropa iskorišten je za brojne police do kojih se može lagano dosegnuti jer su u njih gotovo neprimjetno ukomponirane uske stube  koje vode na vrh bloka ne kojem je smješten krevet za spavanje i radni stol sa računalom. Savršen stan za studente ili mlađi par bez djece.

moderno-uređen-mladenacki-stan-od-56-m2-5

moderno-uređen-mladenacki-stan-od-56-m2-11

moderno-uređen-mladenacki-stan-od-56-m2-12

moderno-uređen-mladenacki-stan-od-56-m2-9

moderno-uređen-mladenacki-stan-od-56-m2-6

moderno-uređen-mladenacki-stan-od-56-m2-3

moderno-uređen-mladenacki-stan-od-56-m2-4

moderno-uređen-mladenacki-stan-od-56-m2-7

moderno-uređen-mladenacki-stan-od-56-m2-8

[sam_ad id=”2″ codes=”true”]

moderno-uređen-mladenacki-stan-od-56-m2-13

moderno-uređen-mladenacki-stan-od-56-m2-14

Izvor: Curated.ru