19 ožu Garsonjera i terasa u prizemlju

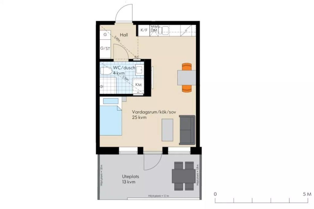
Ova garsonjara uređena je po mjeri studenata ili samaca koji dio svojeg posla obavljaju kod kuće. Iznad radnog stola koji je ujedno i kuhinjski nalazi se perforirana ploča čiji raster perforacija omogućuje višenamjensko korištenje i prilagođavanje prema trenutnim potrebama. Stan ima površinu od 34 kvadrata u kojem su prostori raspoređeni polukružno u odnosu na kupaonicu. Od ulaza sa garderobom preko kuhinje i blagovaone/radnog prostora do dnevnog boravka i spavaće sobe iz kojih se izlazi na terasu.
Izvor: Planete-deco.fr














