08 ožu Bermondsey – stan u bivšem skladištu
Bermondsey je naziv stana uređenog u objektu koji je nekada bilo skladište, a danas je preuređen u zgradu sa stanovima i uredima. Objekt se nalazi u Londonu odakle je i tvrtka Form Design Architecture koja je napravila projekt njegova preuređenja. Vlasnik je najprije želio promjeniti nekoliko sitnih detalja, da bi se na kraju kroz razgovor sa arhitektima odlučio na kompletnu rekonstrukciju stana. Rezultat je kombinacija industrijskog i minimalističkog stila uređenja koji u potpunosti odgovara vlasnikovim željama i stilu života. Nepotrebne prostorije su zamjenjena velikim otvorenim prostorom jasno podijeljenim na prostor za rad, opuštanje, blagovanje, te prostor za vježbanje. Drugi dio stana čini blok koji se sastoji od spremišta, domaćinstva, wc-a, te spavaće sobe sa kupaonicom i garderobom.
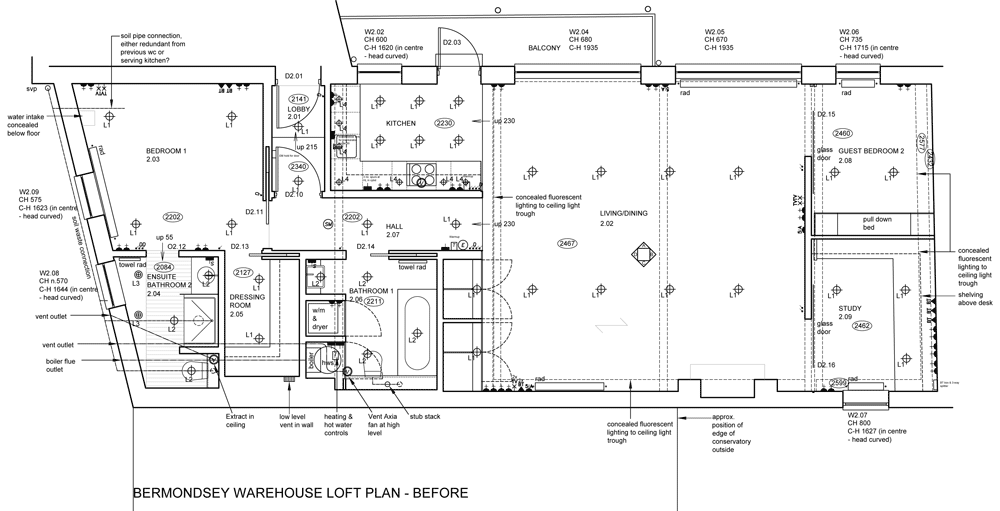
Raspored prostorija u stanu prije preuređenja
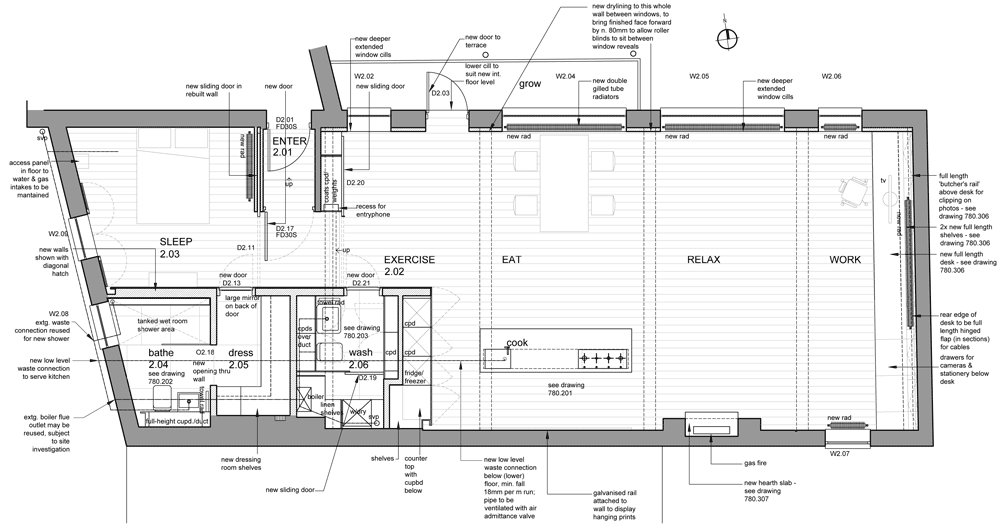
Raspored prostorija u stanu nakon preuređenja
Izvor: Homeadore.com












