Murray hotel u Hong Kongu

Murray hotel u Hong Kongu

Murray hotel u Hong Kongu

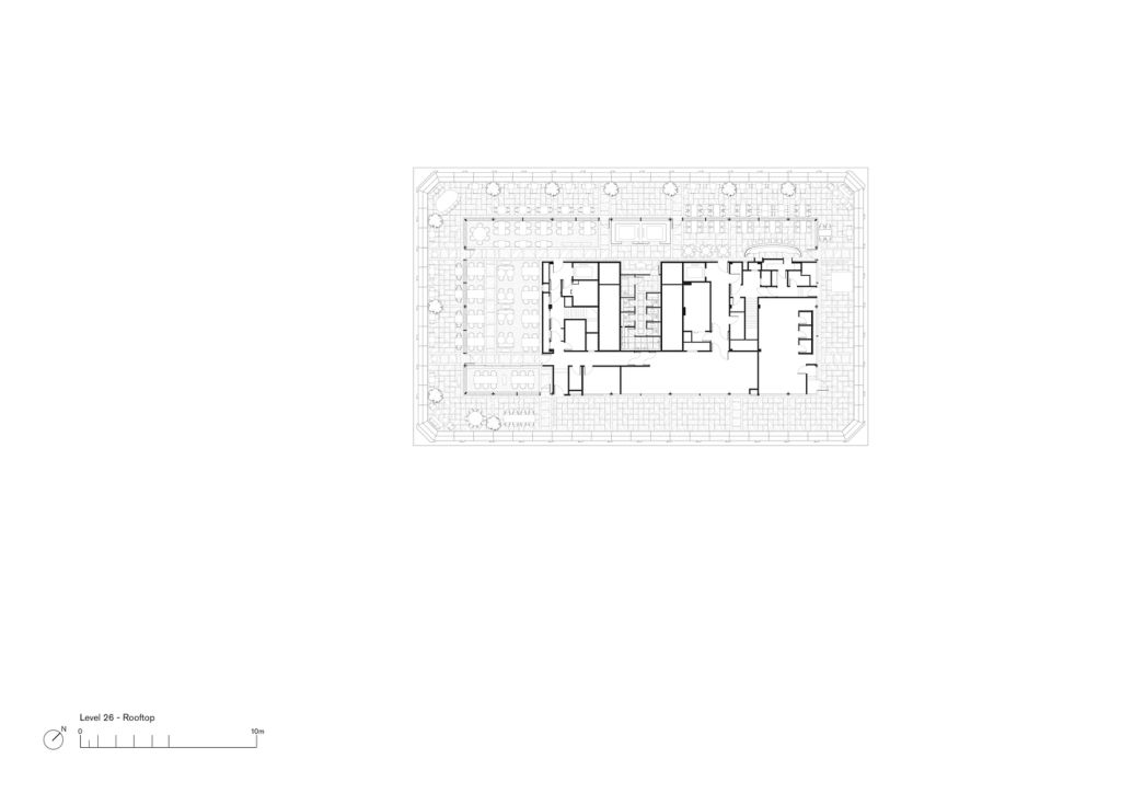
Murray je luksuzni hotel s 336 soba smješten na južnom rubu područja Central u Hong Kongu s panoramskim pogledom na planinu Peak i zeleno područje na jugu. Hotel je nastao rekonstrukcijom bivše zgrade državne uprave koja je izgrađena u vrijeme kada je fokus u gradnji bio povezivanje grada prometnicama za automobile. Jedan od osnovnih ciljeva projekta bio je kvalitetnija povezanost hotela sa gradom, naročito pješacima kojim prethodna verzija objekta nije bila previše naklonjena.

Murray hotel u Hong Kongu

Veliko stablo neprocjenjive vrijednosti očuvano je prilikom gradnje, te sada ponosno stoji ispred ulaza u hotel poput pravog domaćina.

Murray hotel u Hong Kongu

Arhitektura izvorne zgrade izravni je odgovorena na klimu u Hong Kongu – prozori su uvučeni i pažljivo orijentirani kako bi se izbjegla surova tropska sunčeva svjetlost (zgrada je dobila nagradu Energy Efficient Building 1994. godine). Dizajnerski tim tvrtke Foster + Partners konzultirao je Rona Phillipsa, arhitekta izvornog objekta kako bi stekli vrijedne uvide u povijest zgrade. Novi dizajn zadržava pročelje dok nadograđuje druge aspekte objekta i produljuje mu život uvođenjem nove funkcije koja odgovara mijenjanju zahtjeva grada – dajući mu trajnu ostavštinu u godinama koje dolaze. Zgrada je karakteristična po osebujnom uzorku bijelog pročelja, koji se sastoji od rešetke kvadratnih prozora.

Murray hotel u Hong Kongu

Murray hotel u Hong Kongu

Murray hotel u Hong Kongu

Murray hotel u Hong Kongu

Murray hotel u Hong Kongu

Murray hotel u Hong Kongu

Murray hotel u Hong Kongu

Murray hotel u Hong Kongu

Murray hotel u Hong Kongu Murray hotel u Hong Kongu Murray hotel u Hong Kongu Murray hotel u Hong Kongu Murray hotel u Hong Kongu Murray hotel u Hong Kongu Murray hotel u Hong Kongu Murray hotel u Hong Kongu

 Murray hotel u Hong Kongu Murray hotel u Hong Kongu Murray hotel u Hong Kongu Murray hotel u Hong Kongu Murray hotel u Hong Kongu Murray hotel u Hong Kongu Murray hotel u Hong Kongu Murray hotel u Hong Kongu

 

Murray hotel u Hong Kongu

Murray hotel u Hong Kongu

Izvor: Archdaily.com