19 lis Moderna vikendica
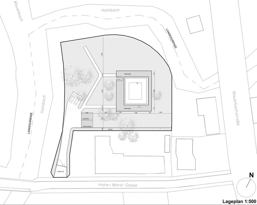
Smještena u okolici Beča ova je vikendica pravo mjesto za odmor od užurbane gradske svakodnevnice. Mir i zelenilo koje pruža šuma vlasnicima omogućuje nezamjenjive trenutke. Objekt je izgrađen u kombinaciji drva i stakla sa pažljivo dimenzioniranim ravnim krovom koji ljeti sprečava da jake zrake sunca direktno udaraju u staklene površine i previše griju prostor. Objekt je podijeljen u dva dijela. Prednji dio kuće karakteriziraju stakleni zidovi koji omogućuju potpuni užitak u prirodi koja okružuje objekt. U tom dijelu smješten je društveni dio, dnevni boravak sa blagavaonom i kuhinjom. Moderni kamin u dnevnom boravku grije kompletni objekt kada dođu hladniji dani.
Uz glavni objekt smještena je garaža sa dodatnim natkrivenim parkirališnim prostorom. Drugi dio vikendice sadrži dvije spavaće sobe, kupaonicu, wc i spremište. Taj dio za razliku od staklenog dijela ima drvene zidove koji vlasnicima pružaju intimnost. Objekt okružuje veliki drveni plato, a u prednjem dijelu služi kao terasa za druženje i boravak u toplim ljetnim danima. Objekt je projektirala tvrtka MOOSMANN Architects.
[sam_ad id=”2″ codes=”true”]
Izvor: Freshome.com [Fotografije: Manfred Seidl]











