04 ruj Veličanstvena prizemnica na rubu maloga sela
Modernu prizemnu drvenu građevinu u vinorodnom kraju definira povezanost unutarnjeg prostora s okolnim krajolikom. Kuća se svojim ravnim, zelenim krovom, brojnim ostakljenim površinama, terasama i atrijima s drvećem i biljkama osjetljivo uklapa u okolni krajolik.
Studio: Prodesi/Domesi
Autor: Michal Kotlas, glavni arhitekt projekta
Koautor: Václav Zahradníček, arhitekt
Projektantski tim: Jan Švarc, projektant
Lokacija projekta: Južnomoravska regija (Češka)
Godina izgradnje: 2023
Izgrađena površina: 516 m²
Površina objekta: 303 m²
Površina parcele: 3910 m²
Fotografije: BoysPlayNice
Tročlana obitelj s dva psa, podrijetlom iz Južne Moravske, za svoju je kuću iz snova odabrala zemljište na periferiji ljupkog gradića. Zajednica općina Modré hory nalazi se u vinorodnoj regiji definiranoj blagim valovitim krajolikom s brojnim vinogradima i slikovitim selima. Na početku suradnje arhitekti su se susreli s investitorom na gradilištu i odmah su bili impresionirani. Štoviše, pokazalo se da vlasnik i arhitekti dijele isti osjećaj za stil i potrebnu dozu progresivnosti za stvaranje arhitektonski zdrave i održive zgrade. U ranim danima suradnje, korištenje virtualne stvarnosti – VR naočala – pomoglo je u usklađivanju njihovih ideja o prostoru. Klijent je tako razvio jasniju viziju interijera kuće i dogovorio s arhitektom Michalom Kotlasom sveobuhvatni dizajn kuće.
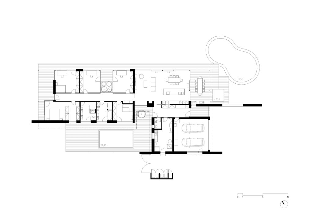
Rezultat je bila drvena prizemnica smještena u postojećem naselju obiteljskih kuća na rubu sela, okružena velikom parcelom koja se nalazi u neposrednoj blizini vinograda i voćnjaka marelica. Upravo je krajolik oko kuće inspirirao arhitekta dok je radio na projektu: “Željeli smo da zelenilo izvana prožima unutrašnjost kuće, što je postignuto zahvaljujući staklenim stijenama i atriju koji povezuju unutarnji prostor s vrtom preko terasa ima zasađeno drvo u jednom od atrija, koje stvara zanimljivu igru svjetla i sjene kada sja sunce i formira paravan između dnevne sobe i eksterijera,” objašnjava Michal Kotlas.
Glavni ulaz u kuću je otvoren, bez ograde, te služi za kolski i pješački pristup. Popločeni dio ulaza odvojen je od okolnog prostora betonskim zidovima s pogledom na privatni dio vrta. Ovi zidovi također povezuju unutarnje prostore kuće s okolinom. Drvena zgrada je prizemna, uklopljena u krajolik koji je oplemenjen ravnim krovom s ekstenzivnim zelenilom. Osim estetske funkcije, zelenilo na krovu je i blagotvorno u toplim ljetnim danima, kada poboljšava cjelokupnu klimu u kući. Svi stambeni prostori kuće okruženi su terasama. Ravni krov s prepustom stvara prirodni zaklon od kiše i sunca. Uz glavnu terasu ispred dnevnog boravka smješteno je jezerce za kupanje, koje poput krova obraslog zelenilom pomaže u regulaciji klime u toplim danima. Na suprotnoj strani kuće nalazi se terasa s potopljenim bazenom, vanjskim tušem i praktičnim pristupom WC-u. Iza kuće nalazi se ukrasni vrt koji prelazi u konvencionalni voćnjak, zajedno s kućom za goste i objektima koji su udaljeni od glavnog objekta. Iako je prilično velika, kuća je nenametljiva i savršeno se uklapa u okolni krajolik.
Sve dnevne sobe su maksimalno povezane s vrtom. Prozori (JÁNOŠÍK) idu od poda do stropa sa skrivenim okvirima tako da ništa ne ometa pogled na okolni krajolik. Dvije prostorije koje služe kao radne sobe povezane su malim atrijem s prostorom za sjedenje. To osigurava prirodno svjetlo u hodniku koji vodi do soba i kupaonice. Glavni dnevni boravak s velikom kuhinjom, blagovaonicom i prostorom za sjedenje potpuno je otvoren prema van. Ovaj efekt je pojačan drvenim akustičnim pločama (NOVATOP) na stropu, koje prolaze preko prozora bez okvira iz unutrašnjosti i do stropa krova u eksterijeru. To vizualno povećava interijer, ispreplićući ga s vanjskim okruženjem. Umetak za kamin, ukrašen okvirom koji podsjeća na izloženi beton, krasi kut dnevne sobe. Gospodarska prostorija služi praktičnoj namjeni, opremljena je prostorima za raznu opremu, perilicom i sušilicom rublja, te praktičnom radnom plohom za slaganje rublja. Dodatno, ima povišenu tuš kabinu za pse, uključujući poseban tuš s četkom za pse.































