Štala pretvorena u modernu kuću

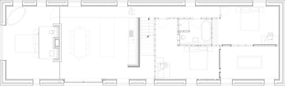
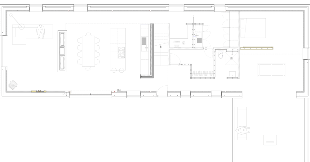
Britanska tvrtka Snook Architects preuredila je nekoliko stotina godina staru štalu i od nje napravila prekrasnu modernu kuću. Stari kameni zidovi i drvene grede u kombinaciji sa moderno uređenim interijerom izgledaju savršeno. Prije preuređenja štala je bila zapuštena i u poprilično lošem stanju, ponajviše konstrukcijski. Stoga je bilo potrebno skinuti kompletan krov i ojačati zidove čeličnim okvirom kako bi objekt bio siguran za boravak. Osim toga u središnjem dijelu objekta srušen je strop, i taj dio u kojem se nalaze kuhinja i blagavaona otvoren je do krova. Osim kuhinje i blagavaone u prizemlju se nalazi dnevni boravak odijeljen od blagavaone prekrasnim kamenim kaminom, radna soba, domaćinstvo, garderoba, kupaonica, soba za goste i prostor za zabavu. Na katu su smještene 3 spavaće sobe od kojih jedna ima privatnu kupaonicu, dok preostale dvije dijele zajedničku. Kuća je površine 354 m² i dovršena je 2012 godine.

stala-pretvorena-u-modernu-kucu-2

stala-pretvorena-u-modernu-kucu-10

stala-pretvorena-u-modernu-kucu-17Izgled objekta prije preuređenja

stala-pretvorena-u-modernu-kucu-3

stala-pretvorena-u-modernu-kucu-4

stala-pretvorena-u-modernu-kucu-5

stala-pretvorena-u-modernu-kucu-6

stala-pretvorena-u-modernu-kucu-7

stala-pretvorena-u-modernu-kucu-8

stala-pretvorena-u-modernu-kucu-9

stala-pretvorena-u-modernu-kucu-11

stala-pretvorena-u-modernu-kucu-12

stala-pretvorena-u-modernu-kucu-13

stala-pretvorena-u-modernu-kucu-14

stala-pretvorena-u-modernu-kucu-15

[sam_ad id=”2″ codes=”true”]

stala-pretvorena-u-modernu-kucu-16

Izvor: Dezeen.com

facebook-like-banner-300x100