27 lip Neobična kuća tvrtke Weststyle Design & Development
Ne volim klasične kuće. Više pozornosti i znatiželje mi oduzimaju kuće koje se razlikuju od ostalih, bilo na dobar ili loš način. Kuća nazvana “The Beach Box” Australskog studia Weststyle Design & Development jedna je od njih. Metalna, smeđa, perforirana fasada i veliki prozor koji seže do vrha zida odmah su okupirali moju pažnju.
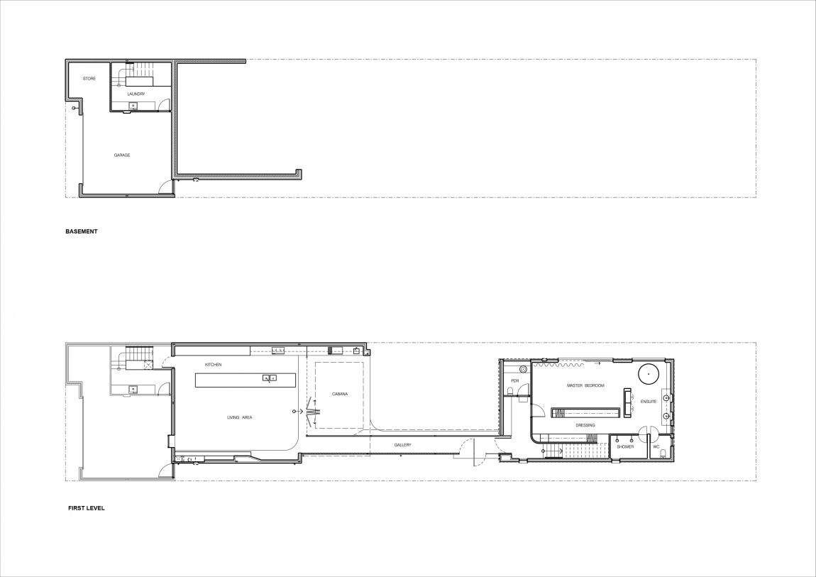
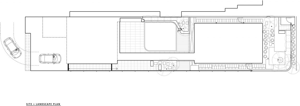
Pogled sa ulice ne otkriva cijelu priču. Kuća se zapravo sastoji od dva gotovo odvojena objekta. Međusobno ih spaja samo hodnik dužine 15m koji se proteže uz centralno smješteno dvorište.
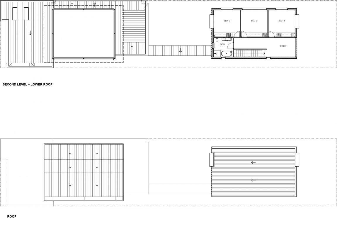
Polovica objekta koju vidite na gornjoj fotografiji zapravo je velika spavaona koja se sastoji od četiri spavaće sobe. Glavna spavaća soba nalazi se u prizemlju, gdje sa spavaćim dijelom, garderobom i kupaonom zauzima većinu površine. Prostor na katu je ekonomičnije iskorišten i sadrži tri dječje sobe, prostor za učenje i zajedničku kupaonicu.
Druga polovica kuće ima društvenu ulogu. Sastoji se od podruma i prizemlja. Obzirom na kosinu terena koja se proteže duž parcele, arhitekti su iskoristili tu činjenicu i napravili podrum odnosno garažu sa spremištem te vešerajem u nastavku. Stubište iz podruma vodi u središte društvenog dijela, gdje otvoreni prostor objedinjuje dnevni boravak, kuhinju i blagovaonu. Taj kompletni prostor povezan je sa terasom i centralnim dvorištem, a sama kuhinja ne poznaje granice i kroz staklenu stijenu nastavlja svoj put na terasu.
Zidovi u društvenom dijelu nemaju klasičnih prozora. Zid prema terasi pretvoren je u staklenu stijenu, dok ostatak svjetlosti dopire kroz ostakljenje smješteno ispod samog krova. Na taj način zidovi su maksimalno iskorišteni za postavljanje namještaja i dekoracija, a prostor je ispunjen dnevnim svjetlom.
Kuhinjski otok proteže se gotovo cijelom dužinom prostora i ujedinjuje kuhinju i blagovaonu u nastavku.
Iako su dva dijela kuće fizički i funkcijski odvojena, interijer je uređen u istom stilu sa istim izborom materijala.
Dugački hodnik spaja dva odvojena dijela kuće.
Dnevni boravak stvoren za uživanje, bilo uz tv i dobar film ili noću uz vatru iz kamina.
Izvor: Homedsgn.com

































