13 velj Moderna seoska kuća klasičnih obrisa

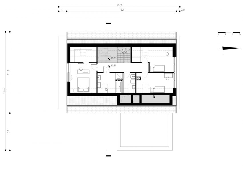
Kuća arhitektonskog studia doomo kombinacija je klasičnog i modernog. Nalazi se u mjestu Mogilany u Poljskoj. Jednostavna forma i koncept kuće idealan je za modernu obitelj, a obzirom na neveliku kvadraturu postaje još privlačnija. U prizemlju se nalazi dnevni dio, gospodarske prostorije i garaža. U potkrovlju je smješten spavaći dio koji se sastoji od glavne spavaće sobe sa garderobom, dvije dječje sobe, te kupaonice i vešeraja.


















Izvor: Homedsgn.com