20 ožu Kuća sa pogledom na Silicijsku dolinu
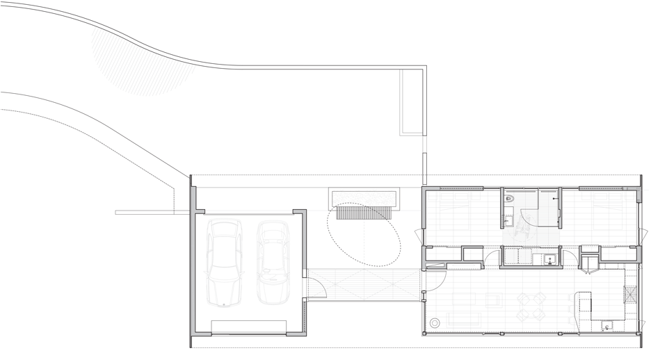
Kuća sa pogledom na Silicijsku dolinu projekt je studia Schwartz and Architecture. Možemo je podijeliti na tri dijela: stambeni dio, garaža i poluotvoreni ulazni prostor.
Kako bi dobili što bolji pogled na Silicijsku dolinu (naziv nastao zbog velikog broja tvrtki visoke tehnologije u regiji poput Google, Facebook, Apple,…) arhitekti su dio kuće izvukli iz terena i učvrstili pomoću čelićnih šipki koje su povezane sa temeljnim stupovima.
Bez obzira na poprilično veliku kosinu terena i šumoviti okoliš, objekt omogućuje kompletnoj obitelji jednostavno korištenje u unutarnjem i vanjskom prostoru.
Središnji, ulazni dio povezuje garažu i stambeni dio. Elipsasti otvor na krovu izrađen je kako bi se omogućilo dopiranje sunčevih zraka.
Središnji dio također nudi prekrasan pogled. Staklena ograda pruža sigurnost i ne blokira pogled promatrača koji sjedi na klupi.
Stambeni dio zauzima površinu od 72 kvadrata. Sastoji se od društvenog dijela sa dnevnim boravkom, blagovaonom i kuhinjom, te dvije spavaće sobe i kupaonice u stražnjem, privatnom dijelu.
Izvor: Dezeen.com




