19 sij Kuća na Krkonošima
Kuća izgrađena u spektakularnim i mirnim planinama Krkonoše primjer je sklada između ljudi i prirode. Studio Fránek Architects.
Projektirati kuću u netaknutoj prirodi planina Krkonoše bio je uzbudljiv izazov, pogotovo kad je to bilo za mojeg dugogodišnjeg prijatelja i njegovu mladu obitelj, osobu koja voli prirodu, umjetnost i život. Štoviše, dizajn kuće po veličini odgovara postojećem objektu koji na ovom zaštićenom području stoji od davnina, kao jedina građevina bez obzira koliko daleko gledali u daljinu. Odgovornost prema okolnostima i stroga regulativa dali su arhetipski oblik. Uz to, investitor je zahtijevao sofisticirani pristup prostoru koji bi bio duhovno usredotočen, neobičan i čist.
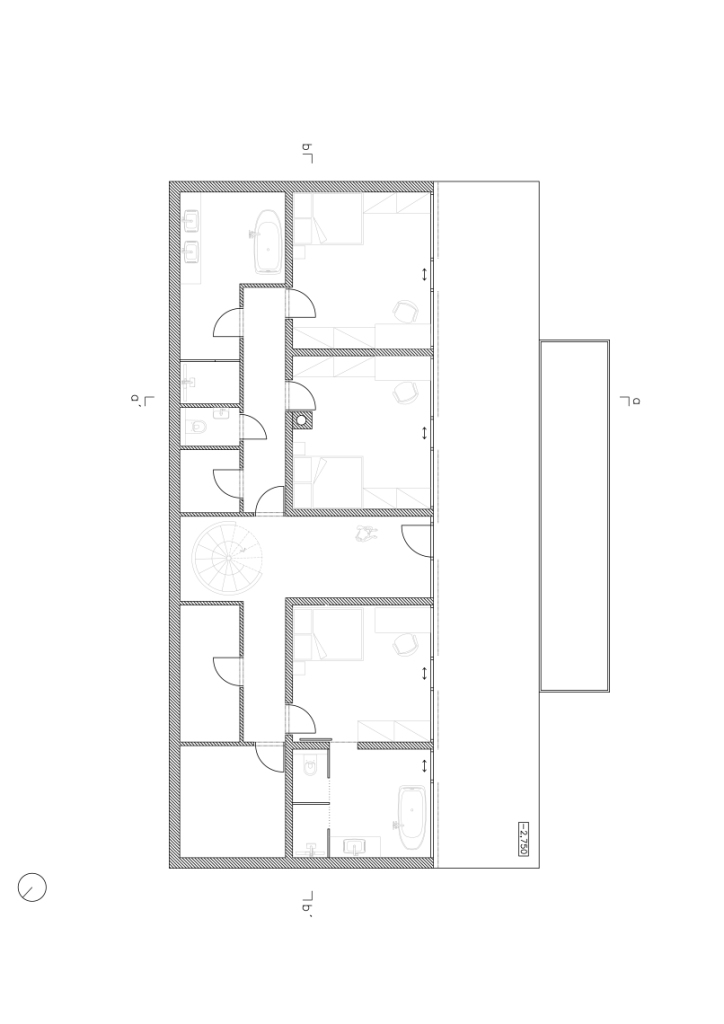
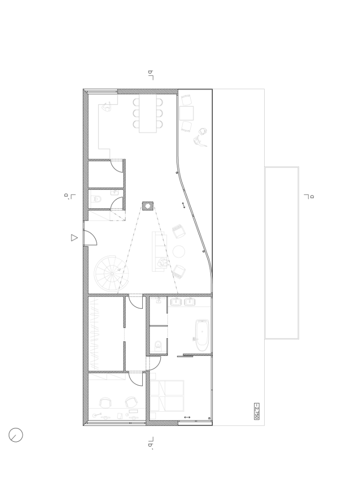
Kuća je smještena na nagnuti teren tako da podrum ima ulaz s prizemlja okrenut prema vanjskom bazenu. Glavni ulaz i prilazni put nalaze se u prizemlju u gornjem dijelu kuće. Podrum je izrađen od armiranog betona, a od razine ± 0,0 to je drvena konstrukcija. Nosivi dio sastoji se od četiri okvira – spojenih punih veza, u koje je pogled upotpunjen s tri para konveksno zakrivljenih jastuka za bolju upotrebu prostora, akustičnu udobnost i strategiju osvjetljenja. Iako je vanjska strana objekta potpuno obložena letvicama zalijepljenim arišom, uključujući krov, unutrašnjost je bijela i čista, čak i podovi. Služi kao bijelo platno za uključivanje umjetnosti u obliku pozitivnog razmišljanja. Sam investitor kuću doživljava na ovaj način. Dugo putovanje u šumi izaziva nestrpljenje i poboljšava doživljaj iz okoline. Jedna od prednosti je odgovarajuća veličina kuće i povoljno ekonomično korištenje i održavanje lokacije. S vremenom će se na dizalicu topline dodati nadstrešnica opremljena solarnim pločama, kao i staklenik sa povrćem.
Slijedi moje iskustvo s tim formalno čistim kućama, zahtijevaju ih snažne ličnosti koje imaju vlastitu predodžbu o njihovom smjeru, svom mjestu u ovom svijetu i vrijednostima koje predstavlja njihova obitelj. Vanjski izgled takvih kuća karakterističan je po svojoj umjetničkoj ljepoti, umjetnosti starenja i uranjanja u zelenilo. Izražava svojevrsnu harmoniju sa svemirom. Razumijevanje njegovih stanovnika da ništa ne traje vječno, ali i neponovljivost i nezamjenjivost sadašnjeg trenutka.
Čistoća, u unutrašnjosti takvih kuća, omogućuje mislima strujanje i ističe se njihove osobnosti i intelekt, kojima ispunjavaju prostor, naseljavaju, kosmiraju i obilježavaju unutrašnjost dok žive.
Fotografije: Petr Polák































