18 sij Kuća izgrađena iz brodskih kontejnera
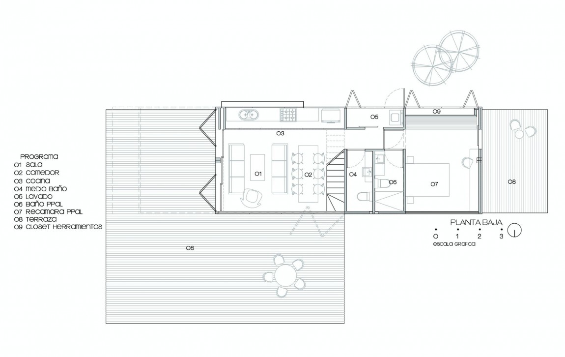
Četiri brodska kontejnera bila su potrebna za gradnju ove kuće smještene u La Primavera, Zapopan, Jalisco, Meksiko. Projekt potpisuju arhitekti studia S+ Diseño. Svaki kontejner ima površinu od 30 m² što kući daje 120 m² prostora. Postavljeni su tako da prizemlje i kat imaju terasu. Prizemlje sadrži dnevni boravak, kuhinju kupaonicu, vešeraj, spavaću sobu sa kupaonicom, terasu i alatnicu. Na katu su spavaća soba za goste sa “walk in” ormarom, kupaonicom i balkonom, galerija/studio i terasa. Vanjski zidovi obloženi su toplinskom i zvučnom izolacijom sa unutarnje strane kako bi boravak u ovakvoj kući bio što ugodniji.
Izvor: Homedsgn.com












