13 kol Kuća Bertelli by Massimo Nordari
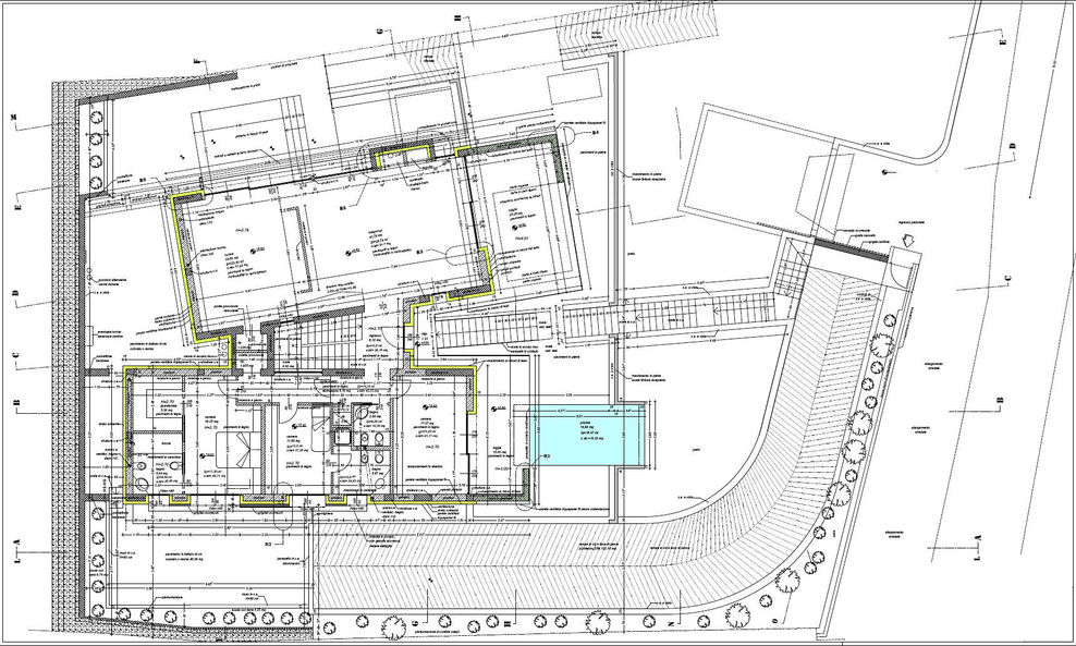
Kuća Bertelli arhitekta Massima Nordaria smještena je na strmom terenu Talijanskih Alpa. Centralno stubište dijeli kuću na dva dijela, posebno naglašena u gornjem nivou gdje svaki dio izlazi iz granica donje konture i definira prepoznatljivi izgled objekta. Moderan izgled kuće dodatno je naglašen odabirom materijala za fasade, kao što su drvene i kamene fasadne obloge te staklena ograda. Jako lijep primjer moderne kuće na brdovitom terenu.
Izvor: Designboom.com











