08 velj Jednostavna i moderna kuća za dvoje

Kako zamišljate idealnu kuću za dvoje? Možda nešto poput ove vizije iz Curly studia? Oni su predstavili svoje viđenje moderne kuće smještene u šumsko okruženje, krojene za život dvije osobe. Dvije nasuprotne fasade kuće ukomponirane su sa dvostrešnim krovom i čine ovojnicu obloženu crnim limenim oblogama sa većinom prozora smještenih na kraćoj krovnoj strehi. Preostale dvije fasade izrađene su u kombinaciji drva i staklenih površina, sa vratima u prizemlju na obje strane, te balkonom odnosno lođom iznad ulaza.
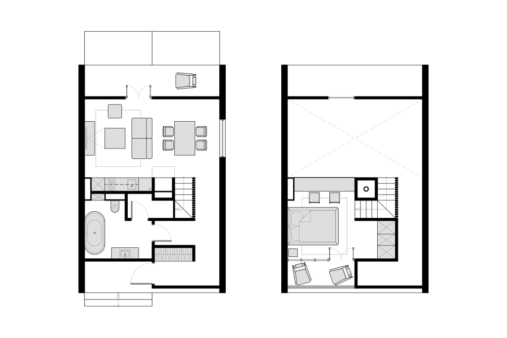
Interijer je ispunjen prirodnim, neutralnim bojama. Dominiraju drvo i bijela boja koji mogu biti idealna podloga za dodavanje dekoracija i detalja u različitim bojama. Prizemlje se sastoji od ulaznog hodnika, kupaonice sa saunom, te otvorenog prostora koji objedinjuje kuhinju, blagavaonu i dnevni boravak sa izlazom na terasu. Koncept sa otvorenim stropom idealno je poslužio za spavaću sobu galerijskog tipa na katu kuće u koju je ukomponirana mala garderoba i radni stol. Još jedan detalj na koji vrijedi obratiti pozornost je centralno smješten kamin koji će bez problema grijati čitavu kuću usred najhladnijih dana.






