20 lip Jednostavna kuća površine 70 m² by Jaro Krobot
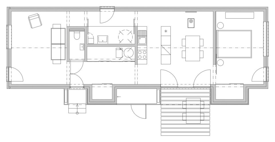
Arhitekt Jaro Krobot pronašao je zamjenu za staru zidanu kuću i na njenom mjestu projektirao moderni objekt tradicionalnih obrisa, karakterističnih za Slovačka sela gdje se i sama kuća nalazi. Površina kuće iznosi 70 m² kompletno smještenih u prizemlju.
Kuća se sastoji od ulaznog hodnika sa garderobom, dnevnog boravka, kupaonice, wc-a, kuhinje sa blagovaonom, spavaće sobe i terase. Građena je STEKO sistemom gradnje koji čine drveni blokovi dimenzija 64 x 32 x 16 cm. Sistem omogućuje jednostavnu i brzu gradnju.
Kuća ima jednostavan pravokutni oblik, sa istaknutim drvenim dijelom koji sa unutarnje strane sadrži ormare, dok sa vanjske strane služi kao spremište. STEKO sistem se može obložiti svim vrstama materijala. Tako je sa vanjske strane postavljena fasada u kombinaciji sa drvenim oblogama, dok su sa unutarnje strane kuće ostavljeni goli zidovi, bez ikakvih dodatnih zidnih obloga.
Izvor: Smallhousebliss.com










