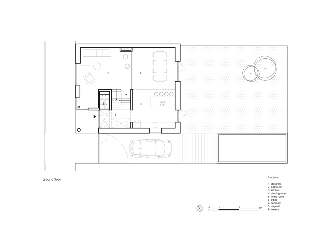
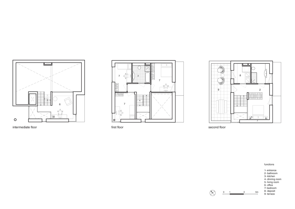
23 pro Jedna kuća četiri etaže

Arhitekti tvrtke Jvantspijker projektirali su ovu kuću površine 277 m² smještenu u centru Rotterdama. Kuća se nalazi na kraju stambenog bloka sa kojim dijeli jedan zajednički zid, te prati njegovu kvadratnu formu. Izvana je obložena bijelom fasadnom opekom sa naglašenim okvirima prozora u crnoj boji.
Podijeljena je na četiri odnosno pet različitih nivoa. U prizemlju se nalazi kuhinja i blagovaona, wc, te povišeni dnevni boravak. Stubište iz dnevnog boravka vodi do međukata gdje je smješten radni prostor. Kako bi se osigurala veća privatnost, spavaće sobe smještene su na gornjim etažama. Prvi kat sadrži tri spavaće sobe i kupaonicu, dok je na drugom katu smještena glavna spavaća soba sa kupaonicaom i garderobom, te velika terasa.















Izvor: Archdaily.com