05 lis Elegantna četverokatnica sa terasom na vrhu
Suradnja tvrtki M-PROJECTS i Larson Shores Architecture + Interiors rezultirala je izgradnjom četverokatnice sa terasom na vrhu, nazvane N° 1864 Greenwich, smještene u San Francisco, California.
Kuća se proteže na četiri nivoa i terasu na samom vrhu. Za gradnju i uređenje korišteni su prirodni materijali koji tvore ugodno i kreativno okruženje, mješavinu umjetnosti, dizajna i tehnologije.
U prizemlju se nalazi garaža za 3 do 4 automobila, apartman za goste, vešeraj i vinski podrum.
Prvi kat sadrži dnevni boravak, blagovaonu, kuhinju, ured, prostor za obitelj, kupaonicu i malu terasu.
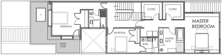
Na trećem katu su tri spavaće sobe sa privatnim kupaonicama.
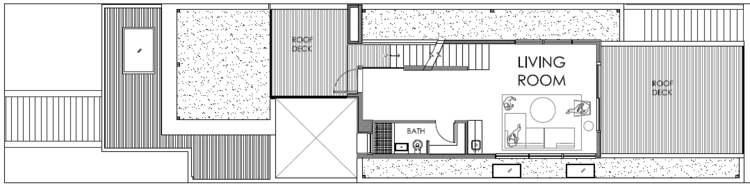
Na četvrtom katu je još jedan dnevni boravak i kupaonica, te dvije vanjske terase.
Na vrhu kuće smještena je terasa sa koje se pruža prekrasan pogled na San Francisco.
Izvor: Contemporist.com

























