14 sij Casa Encinos II
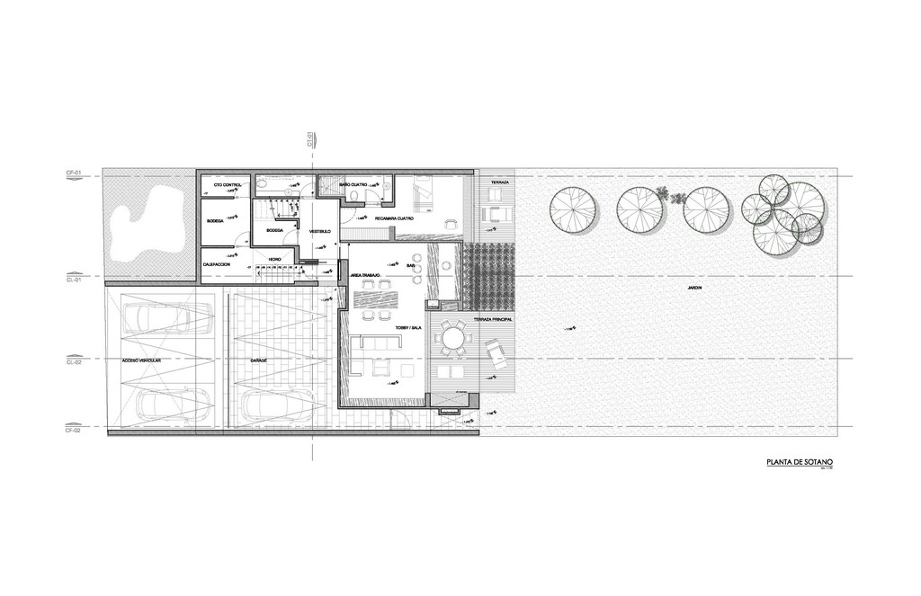
Prema nazivu kuće “Casa Encinos II” možete odmah zaključiti da je smještena u Meksiku, odnosno Mexico City-u. Kroz ulaz u prizemlju dolazi se do predvorja sa stubištem koje vodi na međukat sa velikom blagavaonom i terasom koja gleda u vrt. Blagavaona je spojena sa kuhinjom koja kao i terasa ima pogled prema vrtu. Uz međukat kuća sadrži još dva nivoa, podrumski dio i kat. Podrumski dio podjeljen je u dva dijela, prvi čine garaža i gospodarske prostorije, a u drugom dijelu sa izlazom u vrt smješten je manji društveni dio i spavaća soba. Kat se sastoji od obiteljskog prostora, glavne spavaće sobe sa velikom kupaonicom i garderobom, te dvije manje spavaće sobe. Kuću je projektirala tvrtka a.a.a Almazán y Arquitectos Asociados.
[sam_ad id=”2″ codes=”true”]
Izvor: Arthitectural.com

































